Videoprohlídka pro vás
Možná právě teď hledáte dům, kde ucítíte klid, prostor a tu poctivost starých časů. A přesně takový mám pro vás ve Štemplovci – rodinný dům 4+1, který může být vaším novým domovem.
Je to zděný dům z roku 1979 – pevná stavba, kde je všechno v původním, ale velmi zachovalém stavu. Retro okna, starší rozvody… nic nehrané, nic uměle dotažené. Tři roky stará plechová střecha vám navíc zajistí klid na další dlouhá léta.
Voda je přivedená jak ze studny, tak z veřejného vodovodu. A topení si můžete vybrat – buď kotel na tuhá paliva, nebo plyn. Dům je napojený na kanalizaci.
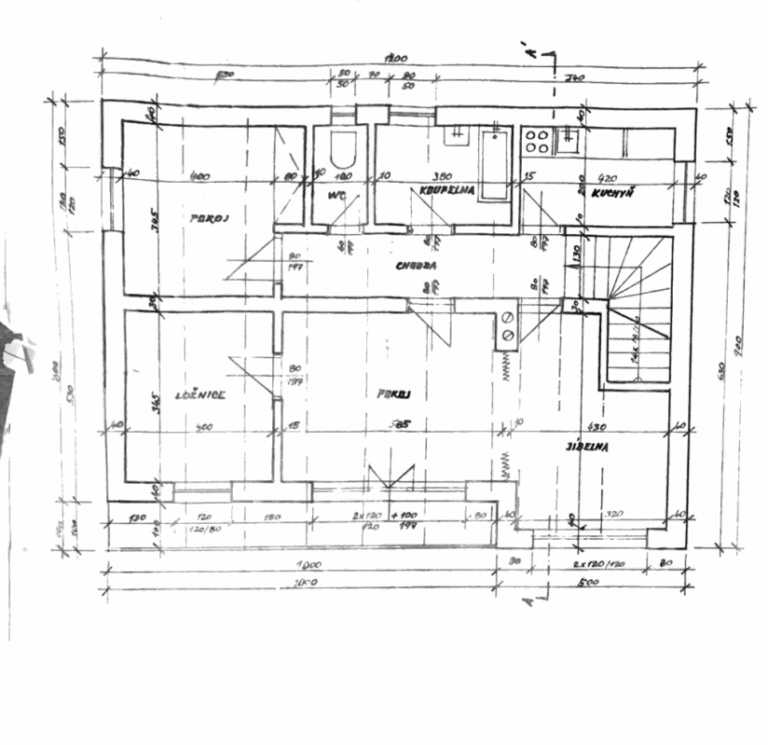
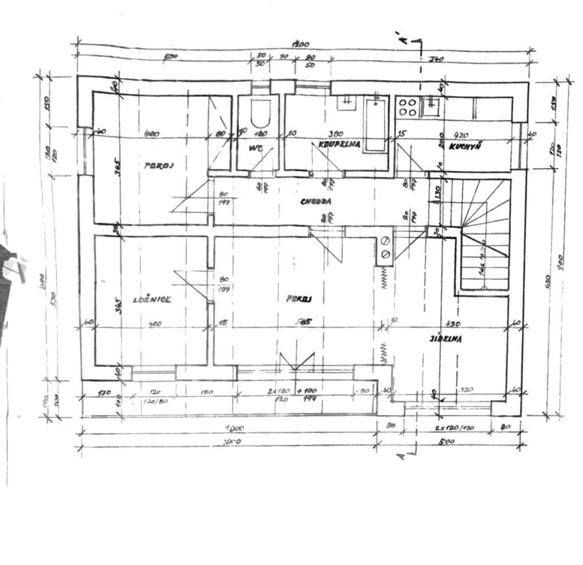
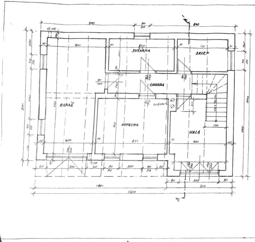
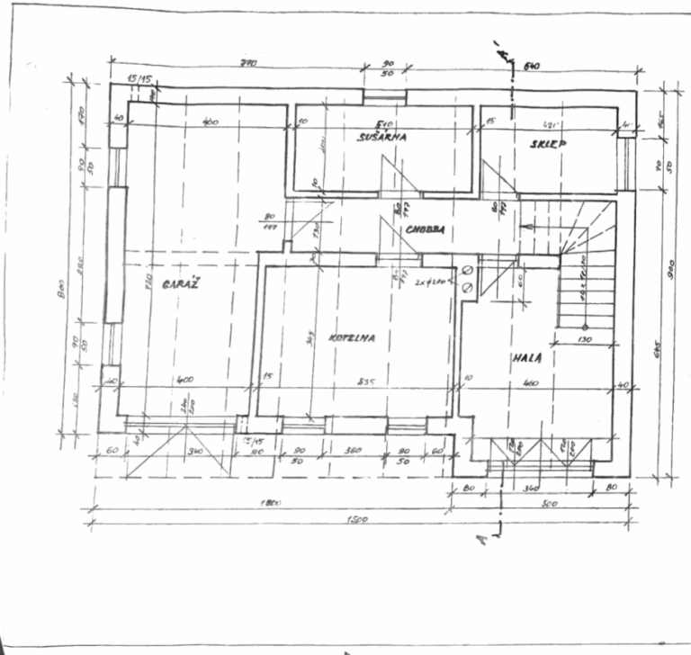
Dispozice domu:
- V přízemí najdete garáž, kotelnu, sušárnu, sklep a vstupní halu.
- V patře jsou tři pokoje, kuchyň, jídelna, koupelna a samostatné WC.
- A navíc je zde půda – ideální pro sezónní věci a všechno, co nechcete mít doma vystavené.
Dům je okamžitě obyvatelný, ale zároveň nabízí obrovský prostor pro případnou rekonstrukci. Štemplovec je krásná, tichá vesnice obklopená přírodou, přesto s perfektní dostupností do Opavy. Ideální místo pro ty, kteří chtějí zahradu, klid a víc prostoru k životu.
Pokud vás tohle místo zaujalo, zavolejte mi. Ráda se s vámi na dům osobně podívám a projdeme vše, co vás bude zajímat.

Bc. Markéta Hrušková
Telefon: + 420 602 358 005
Email: marketa@marketahruskova.cz
Virtuální 3D prohlídka
SHRNUTÍ NEMOVITOSTI:
| Dispozice | 4+1+ garáž + sklep + vstupní hala |
|---|---|
| Podlahová plocha I.NP | 170 m2 |
| Pozemek celkem | 1855 m² |
| Z toho zahrada | 1702 m² |
| Vytápění | plyn a tuhá paliva |
| Lokalita | Obec Štemplovec - Štemplovec je malebná vesnice, která patří pod obec Holasovice v okrese Opava. Leží přibližně 3 km jihozápadně od Holasovic a 10 minut autem od Opavy |
































